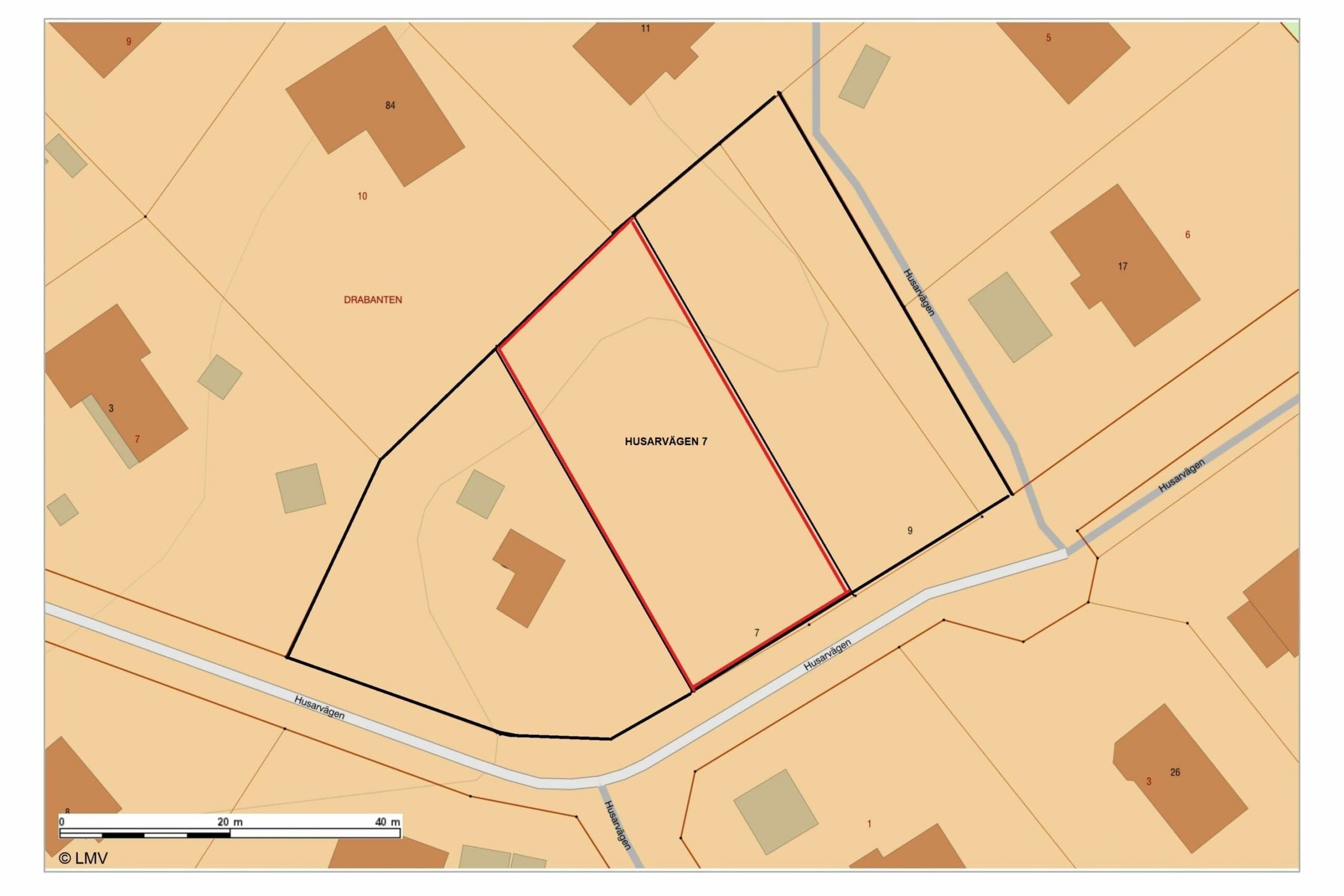
Chans att bygga helt nytt boende på 2 tomter om 1 167 kvm respektive 1084 kvm i naturnära och familjevänligt läge!
Fastigheterna är förberedda för kommunalt vatten och avlopp fram till tomtgränsen.
Byggrätt:
Högst en huvudbyggnad och ett uthus/garage uppföras.
• Huvudbyggnad i en våning med vind eller sutterängvåning får högst uppta 160 kvm byggnadsarea.
• Uthus/garage får uppföras med sammanlagd byggnadsarea på 40 kvm.
• På varje fastighet ska minst två biluppställningsplatser anordnas.
För den som söker ett lugnt, familjevänligt och sjönära läge är detta ett perfekt område. Inte långt från tomten finns förskola, vackra grönområden, trevliga promenadstråk och badsjö.
Förslag på husmodell från Eksjöhus till tomterna är Prio 164
Läs mer hos Husmanhagberg:
Husarvägen 7: https://www.husmanhagberg.se/objekt/husarvagen-7-trollbacken/OBJ22924_1942033001/
Husarvägen 9: https://www.husmanhagberg.se/objekt/husarvagen-9-trollbacken/OBJ22924_1942059777/
