Flex+

Om Vallvik

Modernt enplanshus med intressanta vinklar

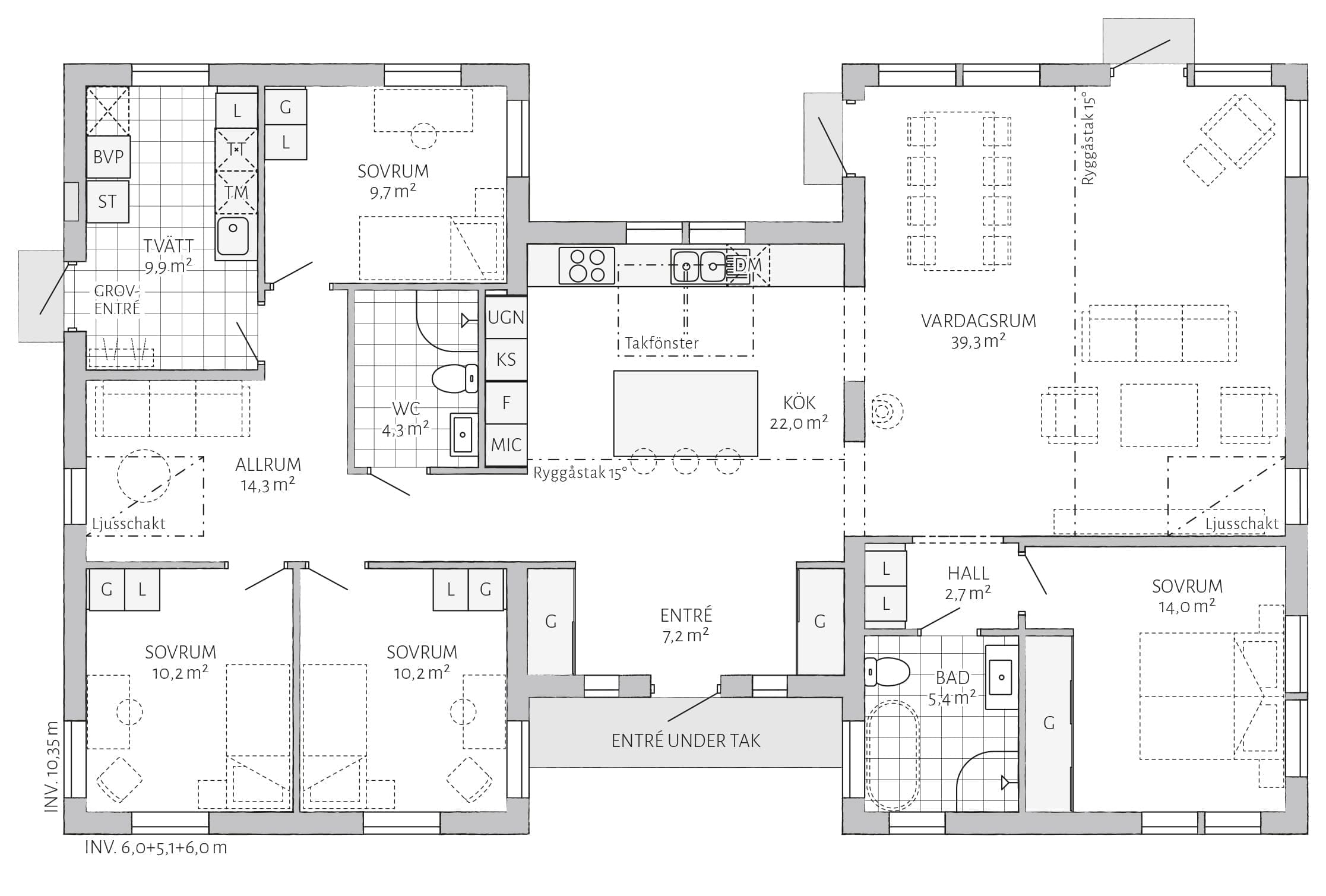
Ett häftigt och modernt 1-planshus med tre huskroppar som skapar intressanta vinklar och ett dynamiskt yttre. I husets mittparti finns en funktionell entré med tillhörande skjutdörrsgarderober, ett välplanerat kök och en inbjudande matplats. Allt under samma ryggåstak. När du passerat köket möts du av ljus som flödar in från det rymliga vardagsrummet med dess generösa fönsterpartier och ryggåstak. Härifrån når du föräldrasovrummet som är väl tilltaget och har ett tillhörande badrum. I husets andra del finns tre lättmöblerade sovrum som samtliga nås från ett gemensamt luftigt allrum. Här finns även en wc/dusch och ingång till en extra stor tvättstuga med groventré.

Hur vill du bygga ditt hus?

Våra olika husserier

Vi har alla olika förutsättningar och prioriteringar när vi ska bygga hus, därför har vi delat in våra hus i olika serier. Välj den serien som passar dina kriterier bäst.

Prio

Att välja ett Priohus innebär att du får samma höga kvalité, till ett lägre pris. Det är möjligt genom att vi redan gjort de flesta val åt dig. Prio är ett bra val för dig som har många andra saker att prioritera samtidigt i livet.

  • Många invändiga val
  • Prisvärt
  • Enkelt
  • Arkitektritat

Flex

Ett ”Flexhus” väljer du som vill ha möjligheten att göra många personliga val och anpassa bostaden efter dina behov. Flex erbjuder många tillval, men inte obegränsad möjlighet att förändra stora saker som till exempel planlösning.

  • Förutbestämda variationer på planlösning
  • Prisvärt
  • Arkitektritat

Flex+

Det här är hus med stora möjligheter att förändra planlösning och lägga till extra fönster och dörrar. Ett Flex+ väljer du som vet precis vad du är ute efter och har många egna visioner kring ditt boende.

  • Bestäm alla tillval
  • Förändra planlösning som du vill
  • Arkitektritat med unika lösningar

Förklaring teknisk data

Bruksarea

Den totala ytan innanför ytterväggarna på samtliga våningsplan. I bruksarean räknas även ytor för exempelvis köksskåp, garderober och värmepanna.

Byggnadsarea

Den yta som huset upptar på marken. I stort sett en projektion av husets rakt ovanifrån. Balkong räknas in i byggnadsarean om undersidan är lägre än 3 meter från marken. Byggnadsarea är viktigt sett till hur stort du får bygga på en tomt, vilket anges i detaljplan.

Byggnadshöjd

Höjden från tomtens medelnivå upp till skärningen mellan fasadplanet och ett plan som med 45 graders lutning in mot byggnaden berör byggnadens tak. Ofta är fasaden ut mot gatan beräkningsgrundande. Byggnadshöjd är ett svårt begrepp, prata gärna med våra säljare om du är osäker.

Antal rum

Ett rum ska gå att bo i och det måste vara minst 7 kvadratmeter stort och ha ett fönster. Badrum och tvättstuga räknas inte som rum i ett hus medan köket alltid anges separat.

Beställ hem din gratis huskatalog

Med 50 högkvalitativa och genomarbetade husmodeller finns det någonting som passar alla!

Fyll i dina uppgifter till höger och inom några dagar har du vår senaste huskatalog i dina händer, fullmatad med husmodeller, inspiration och tips för dig som ska bygga hus.

OBS! Vi skickar bara våra svenska kataloger inom Sverige & Ålands gränser.

Beställ våra kataloger

    Har du en tomt?

    Den här sidan är skyddad av reCAPTCHA och Googles
    Privacy Policy och Terms of Service.

    Tack för din beställning

    Katalogerna är på väg till dig!

    Katalogerna kommer med posten inom några dagar!


    Under tiden du väntar, följ oss gärna på Facebook & Instagram för senaste nytt.

    Kontakta oss

    Prisindikation Vallvik

    Var du bygger i landet kan påverka priset något – Fyll i dina uppgifter så återkommer vi med en lokal prisindikation.

    Modernt enplanshus med intressanta vinklar

    Vallvik

    Bruksarea
    156 m2
    Plan
    1
    Antal rum
    6 rum och kök
    Serie
    Flex+

      Har du en tomt?

      Den här sidan är skyddad av reCAPTCHA och Googles
      Privacy Policy och Terms of Service.

      Tack för din förfrågan!

      Din prisförfrågan är skickad

      Inom kort kommer du få svar från närmsta Eksjöhuskontor på din fråga.

      Visst har du våra inspirerande kataloger redan?

      Beställ katalog

      Vallvik

      Planritning

      3D-Modell

      Se Vallvik från alla håll

      Camilla Jernberg

      Arkitektens tankar om Vallvik

      Camilla Jernberg

      Ett stilrent och modernt 1-planshus på 156 kvadratmeter.

      Huset har sex rum och kök. Entré med tillhörande klädförvaring, kök och matplats i mitten. På den ena sidan om mittpartiet finns vardagsrum, föräldrasovrum och badrum. I den andra delen finns tre sovrum, ett allrum, wc/dusch samt tvättstuga.

      Skapa den rätta känslan

      Ett Flex+ hus - många möjligheter

      En bra planlösning och en husmodell som svarar upp mot de egna kraven är en bra början. Hos Eksjöhus finns mycket kvalitet som standard – och många roliga möjligheter till tillval. I våra flex+ hus har du bland annat nedan möjligheter.

      Invändigt

      Prio 141 kök

      Invändigt

      Vår standardutrustning är komplett och av högsta kvalitet. Huset har berg-, jord-, frånluft- eller sjövärmepump från Nibe. Badrums- och köksinredning från Vedum, samt vitvaror till kök och tvätt från Miele. Vi kompromissar inte med att bygga trähus, därför är massiv ektrappa från Snickarlaget, trägolv från Kährs och massiva innerdörrar från Swedoor standard. Vill du uppgradera ytterligare finns många attraktiva val.

      Utvändigt

      Prio 158 - exteriör

      Utvändigt

      Med 28 mm tjocklek på foder, knutar och vindskivor är detta ett trähus som står pall. De flesta av våra kunder väljer fasad i trä men vi bygger gärna huset med fasad i puts eller tegel. Kvalitetspannor från Benders är standard för taket. Här finns många val i kvalitet och färg. Väljer du träfasad är huset grundmålat från fabrik som standard.

      Stil

      Stil

      Huset kan exteriört anpassas efter dina önskemål och behov då planlösningen och husets stil är oberoende av varandra. Husmodellen kläs i den stilriktning som du tycker mest om. Våra fyra stilriktningar är modern, tidlös/samtida, klassisk och traditionell.

      Trygghet

      Trygghet

      Vi arbetar med välkända leverantörer med högsta produktkvalitet. Våra hus tillverkas inomhus i anpassade lokaler för likvärdig och stabil kvalitet över tid. Eksjöhus är en av Sveriges största aktörer på småhusmarknaden och har haft högsta kreditklassning, trippel AAA, i mer än 20 år utan uppehåll. Med de bästa garantier och försäkringar på marknaden kan du känna full trygghet.

      Garage

      Garage

      Planerar du för garage, carport eller förråd? Det mesta går att ordna med de olika modeller av sidobyggnader som vi erbjuder. Prata med oss i ett tidigt skede av processen om det finns intresse att addera garage till ditt nya hus.

      Prio 141 kök

      Invändigt

      Vår standardutrustning är komplett och av högsta kvalitet. Huset har berg-, jord-, frånluft- eller sjövärmepump från Nibe. Badrums- och köksinredning från Vedum, samt vitvaror till kök och tvätt från Miele. Vi kompromissar inte med att bygga trähus, därför är massiv ektrappa från Snickarlaget, trägolv från Kährs och massiva innerdörrar från Swedoor standard. Vill du uppgradera ytterligare finns många attraktiva val.

      Prio 158 - exteriör

      Utvändigt

      Med 28 mm tjocklek på foder, knutar och vindskivor är detta ett trähus som står pall. De flesta av våra kunder väljer fasad i trä men vi bygger gärna huset med fasad i puts eller tegel. Kvalitetspannor från Benders är standard för taket. Här finns många val i kvalitet och färg. Väljer du träfasad är huset grundmålat från fabrik som standard.

      Stil

      Huset kan exteriört anpassas efter dina önskemål och behov då planlösningen och husets stil är oberoende av varandra. Husmodellen kläs i den stilriktning som du tycker mest om. Våra fyra stilriktningar är modern, tidlös/samtida, klassisk och traditionell.

      Trygghet

      Vi arbetar med välkända leverantörer med högsta produktkvalitet. Våra hus tillverkas inomhus i anpassade lokaler för likvärdig och stabil kvalitet över tid. Eksjöhus är en av Sveriges största aktörer på småhusmarknaden och har haft högsta kreditklassning, trippel AAA, i mer än 20 år utan uppehåll. Med de bästa garantier och försäkringar på marknaden kan du känna full trygghet.

      Garage

      Planerar du för garage, carport eller förråd? Det mesta går att ordna med de olika modeller av sidobyggnader som vi erbjuder. Prata med oss i ett tidigt skede av processen om det finns intresse att addera garage till ditt nya hus.

      Kundfoton

      Inspireras av våra kunders Vallvik

      Tagga dina bilder med @eksjohus och #mittEksjöhus för att bli utvald i våra inspirationsflöden på sajten.

      Laddar...

      Personlig prägel

      Hitta din hustyp & stil

      Här är din genväg till drömhuset. Välj hustyp eller stil och se hela vårt utbud inom vald kategori.

      Mina favoriter

      Laddar...

      Vill du komma i kontakt med ditt lokala säljkontor, ställa frågor och få prisindikation på flera husmodeller samtidigt?

      Du har inte valt ut några favoriter bland våra husmodeller

      Använd hjärtsymbolen för att spara dina favoriter. När du är klar kan du få pris och mer information här.

      Filminspelning

      Vi vill gärna visa upp vårt husliv

      Vad kul att ni är intresserade av att vara med i vårt filminspelningsprojekt!

      Fyll i formuläret och lämna en kort beskrivning av dig själv, ditt hem och varför just du vill vara med. Berätta också gärna om ditt intresse eller din hobby.

      Vi kommer ta kontakt med dig så fort vi kan.

        Den här sidan är skyddad av reCAPTCHA och Googles
        Privacy Policy och Terms of Service.

        Tack för din uppgifter!

        Dina uppgifter är inskickade!

        Inom kort kommer vi att ta kontakt med dig.

        Kontakta mig

        Vänligen kontakta mig här

        Fyll i formuläret så kommer jag svara dig så fort jag har möjlighet. Vill du hellre ringa, slå en signal på numret nedan.

        Med vänlig hälsning

          Den här sidan är skyddad av reCAPTCHA och Googles
          Privacy Policy och Terms of Service.

          Tack för din förfrågan!

          Din fråga är skickad

          Inom kort kommer jag att ta kontakt med dig.

          Kontakt

          Ställ din fråga

          Är du nyfiken på att bygga hus, men inte säker på var du ska börja? Vi är här för att hjälpa dig, oavsett var du befinner dig i ditt beslutsfattande.

          Ingen fråga är för liten eller för tidig.

          Fyll i vårt enkla formulär för att ställa dina frågor – det är helt förutsättningslöst. En representant från vårt närmsta kontor kommer att kontakta dig snart för att svara på dina frågor och diskutera dina idéer.

          Det finns inga förpliktelser, bara möjligheter. Låt oss tillsammans utforska din dröm om att bygga hus!

          Fyll i formuläret så återkommer vi inom kort.

            Den här sidan är skyddad av reCAPTCHA och Googles
            Privacy Policy och Terms of Service.

            Tack för din förfrågan!

            Din fråga är skickad

            Inom kort kommer närmsta kontor att ta kontakt med dig.

            Beställ hem din gratis huskatalog

            Med 50 högkvalitativa och genomarbetade husmodeller finns det någonting som passar alla!

            Fyll i dina uppgifter till höger och inom några dagar har du vår senaste huskatalog i dina händer, fullmatad med husmodeller, inspiration och tips för dig som ska bygga hus.

            OBS! Vi skickar bara våra svenska kataloger inom Sveriges gränser.

            Beställ våra kataloger

              Har du en tomt?

              Den här sidan är skyddad av reCAPTCHA och Googles
              Privacy Policy och Terms of Service.

              Tack för din beställning

              Katalogerna är på väg till dig!

              Katalogerna kommer med posten inom några dagar!


              Under tiden du väntar, följ oss gärna på Facebook & Instagram för senaste nytt.